Дисконт
Доставка
Поддержка
info@ventorus.su
8 800 700 81-22
Каталог
Контакты
Избранное
Сметы
NEW
Войти
Корзина
Теплоизоляция
Огнезащита
Грувлок
Трубы и фасонные части
Канализация
Фитинги
Запорно-регулирующая арматура
Кровельные опоры
Главная
Библиотека
Инструкции
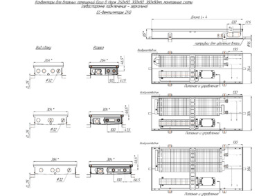
Монтажные схемы для встраиваемых в пол конвекторов Бриз В Нерж
Обращение в компанию
Калькуляторы
Библиотека
NEW
BIM-Модели
Закон
ГОСТы
СНИПы
Сертификаты
Паспорт изделия
Инструкции
Каталоги и брошюры
Технические решения
Дополнительная информация
Монтажные схемы для встраиваемых в пол конвекторов Бриз В Нерж
Открыть
Скачать
Товары
49 212 ₽
KZTO Конвектор внутрипольный Бриз В Нерж
Купить
Статьи
Низкие радиаторы отопления
Главная
Каталог товаров
Бренды
Каталог
Дисконтные товары
Теплоизоляция
Каучуковая
Трубки
Без покрытия
С покрытием
С самоклеющимся разрезом
В бухтах
Универсальные
Высокотемпературные
Специального назначения
Клей
Очистители
Лента каучуковая
Рулоны
Без покрытия
С покрытием
Самоклеющиеся
Высокотемпературные
Специального назначения
Универсальные
Клей
Очистители
Фольгированные
Лента для теплоизоляции
Фольгированная ПВХ
Со стеклотканью
С полимерным покрытием
Листы-пластины
Подвесы теплоизоляционные
Подвесы без хомута
Подвесы с хомутом
Подвесы для высоких нагрузок
Лента каучуковая
Полиэтиленовая
Трубки
Листы
Шнуры уплотнительные
Рулоны
Фольгированные
Самоклеющиеся
Ленты из вспененного полиэтилена
Пенополиуретановая
Скорлупы ППУ
Отводы ППУ
Тройники ППУ
Плиты ППУ
Напыляемый утеплитель
Напыляемый утеплитель
Негорючая теплоизоляция
Маты МП-100 ГОСТ 21880-2011 XOTPIPE
Аксессуары для теплоизоляции
Клей
Очистители
Лента для теплоизоляции
Лента алюминиевая
Лента армированная ТПЛ
Ленты из вспененного полиэтилена
Лента каучуковая
Ленты ПВХ
Мастика (Герметики)
Клипсы и заклепки
Защитная краска
VIOTERM FINISH
Втулки защитные на теплоизоляцию
Сетка Манье
VIOTERM FINISH
Подложка для теплого пола
Лента демпферная
Базальтовая
Цилиндры
Без покрытия
В оцинкованной оболочке
Кашированные фольгой
Негорючие кашированные
Кашированные фольма-тканью
Ламельные
Маты прошивные
Без покрытия
С армированной фольгой
С неармированной фольгой
С фольма-тканью
Со стеклотканью
Маты огнезащитные
Маты ламельные
Техматы
Плиты
Для строительной теплоизоляции
Для технической теплоизоляции
Звукоизоляционные
Для кровли
Для фасада
Огнезащитные
Отводы
Без покрытия
Кашированные фольгой
Негорючие кашированные
В оцинкованной оболочке
Кашированные фольма-тканью
Тройники
Без покрытия
Кашированные фольгой
Негорючие кашированные
С защитным покрытием из фольма-ткани
ОПОРНЫЕ КОЛЬЦА
Полиолефиновая
Трубки
Рулоны
Экструдированный пенополистирол XPS
Звукоизоляционные панели XPS
Теплоизоляционные панели XPS
Аэрогель
Базальтовое супертонкое волокно
Комбинированное огнезащитное покрытие
Теплоогнезащитное покрытие
Клеевой огнезащитный состав
Сетка Манье
Инструменты для теплоизоляции
Ножи и лезвия
Набор инструментов
Клеевые пистолеты
Шнуры уплотнительные
Шнуры уплотнительные
Шнуры огнестойкие термоуплотнительные
Звукоизоляция
Звукоизоляционные мембраны
Звукоизоляционные плиты и маты
Звукоизоляция труб
Звукоизоляция стен
Звукоизоляция пола
Звукоизоляция потолка
Виброподвесы
Звукоизоляционные панели
Ленты вибродемпфирующие
Звукоизоляция воздуховодов
Звукоизоляция подрозетников
Звукоизоляционный гипсокартон
Звукоизоляция перегородок
Комплектующие для звукоизоляции
Клейкие ленты
Лента алюминиевая
Ленты из вспененного полиэтилена
Ленты ПВХ
Лента армированная ТПЛ
Лента каучуковая
Лента теплоизоляционная
Лента демпферная
Ленты из вспененного полиэтилена
Лента каучуковая
Защитные покрытия
Окожушка металлическая
Окожушка оцинкованная
Прямые участки оцинкованной окожушки
Отводы оцинкованной окожушки
Тройники оцинкованной окожушки
Переходы оцинкованной окожушки
Врезки оцинкованной окожушки
Заглушки оцинкованной окожушки
Бочонки оцинкованной окожушки
Короба оцинкованной окожушки
Окожушка нержавеющая
Окожушка алюминиевая
Окожушка из зеркальной нержавеющей стали
Бочонки и короба окожушки XOTPIPE O-ME
Бочонки XOTPIPE O-МЕ-ZN BAR
Короба XOTPIPE O-МЕ-ZN BOX
Прямые участки окожушки XOTPIPE O-ME
Отводы окожушки XOTPIPE O-ME
Тройники и врезки окожушки XOTPIPE O-ME
Переходы и заглушки окожушки XOTPIPE O-ME
Гибкие защитные покрытия
Фольгированные
Стеклоткань
Полимерные
Покрытия ПВХ
Рулоны
Отводы
Тройники и кожухи ПВХ
Акссессуары и детали для монтажа ПВХ
Защитные краски для теплоизоляции
Огнезащита
Огнезащита воздуховодов
Огнезащита кабельных проходок
Огнезащита зазоров и соединений
Огнезащита металлоконструкций
Огнезащита трубных проходок
Грувлок
Муфты грувлок
Жесткие
Гибкие
Гибкие переходные
Отводы грувлок
Отводы 11,25°
Отводы 22,5°
Отводы 45°
Отводы 90°
Крестовины
Крестовины переходные грувлок
Крестовины равнопроходные грувлок
Заглушки
Уплотнительные прокладки
Тройники грувлок
Под муфту
Под резьбу
Переходные
Равнопроходные
Фланцы грувлок
Фланцевые адаптеры
Фланцы накидные
Переходы
Переходы грувлок под муфту
Переходы грувлок под резьбу
Хомуты
Хомут-седелка U-образный грувлок под резьбу
Хомут-седелка грувлок под муфту
Хомут-седелка грувлок под резьбу
Монтажные элементы
Опорные конструкции и рамы
Опоры для воздуховодов и кабельных лотков
Соединительные элементы профиля
Неподвижные опоры
Заглушки профиля
Монтажный профиль
Скользящие опоры
Консоли монтажные и опорные
Насосы
Погружные
Канализационные насосы
Скважинные
Дренажные
Насосные станции
Комплектующие к насосам
Поверхностные
Фекальные
Колодезные
Циркуляционные
Повысительные насосы
Трубы и фасонные части
Полипропиленовые трубы
Трубы полипропиленовые для отопления и водоснабжения
Трубы PP-R PN10
Трубы PP-R PN20
Трубы PP-R PN25
Трубы PP-R SDR 6
Трубы PP-R SDR 7,4
Трубы PP-R SDR 11
Трубы PP-R армированные алюминием
Трубы PP-R армированные стекловолокном
Трубы полипропиленовые для пожаротушения
Трубы PP-R PN10
Трубы PP-R PN20
Трубы PP-R PN25
Трубы PP-R SDR 6
Трубы PP-R SDR 7,4
Трубы PP-R SDR 11
Трубы PP-R армированные алюминием
Трубы PP-R армированные стекловолокном
Металлопластиковые
Фитинги для металлопластиковых труб
Пресс-фитинги латунные
Фитинги обжимные латунные
Резьбозажимные соединения для труб
Трубки для подключения радиатора
Пресс-фитинги латунные
Пресс-муфты
Пресс-переходники
Пресс-тройники
Пресс-угольники
Пресс-водорозетки
Пресс-трубки Г-образные
Пресс-трубки Т-образные
Фитинги обжимные латунные
Муфты обжимные
Переходники обжимные
Угольники обжимные
Водорозетки обжимные
Тройники обжимные
Крестовины обжимные
Евроконус обжимной
Трубы НПВХ
Гофрированные
Гибкая подводка
Гибкая подводка антивибрационная
Гибкая подводка гайка-гайка
Гибкая подводка гайка-штуцер
Гибкая подводка для воды
Гибкая подводка для газа
Гибкая подводка для смесителей
Гибкая подводка угловая
Гибкая подводка сильфонная
Шланги
Полиэтиленовые
Из сшитого полиэтилена PEX
Трубы PEX с кислородозащитным слоем EVOH
Труба PE-Xa
Труба PE-Xa/EVOH
Труба PE-Xb
Труба PE-Xb/EVOH
Труба PE-Xb/AL/PE-Xb
Труба PE-Xc/AL/PE-Xb
Муфты обжимные
Фитинги аксиальные
Пресс-фитинги латунные
PE-RT
Трубы PE-RT однослойные
Трубы PE-RT/EVOH
Трубы PE-RT/EVOH/PE-RT
Трубы PE-RT/AL/PE-RT
Пресс-фитинги латунные
Фитинги обжимные латунные
Трубы ПНД
Трубы ПНД SDR 11
Трубы ПНД SDR 13.6
Трубы ПНД SDR 17
Трубы ПНД SDR 17.6
Трубы ПНД газовые
Фитинги для труб ПНД
Медные трубы
Труба медная отожженная
Труба медная неотожженная
Трубы медные дюймовые
Трубы медные метрические
Фитинги для медных труб
Пресс-фитинги для медных труб
Фитинги для медных труб под пайку
Предизолированные
Трубы медные в изоляции
Гофрированные из нержавеющей стали
Труба гофрированная нержавеющая отожженная
Труба гофрированная нержавеющая неотожженная
Труба гофрированная нержавеющая в оболочке
Труба гофрированная нержавеющая под развальцовку
Фитинги для гофрированных нержавеющих труб
Трубы стальные и фитинги
Трубы из нержавеющей стали
AISI 304
AISI 316L
AISI 444
Радиаторы и конвекторы
Конвекторы
Водяные конвекторы
Напольные конвекторы
Настенные конвекторы
Внутрипольные конвекторы
Электрические конвекторы
Радиаторы
Стальные панельные
Гигиенические
С боковым подключением
С нижним подключением
Тип 10
Тип 11
Тип 12
Тип 20
Тип 21
Тип 22
Тип 30
Тип 33
Трубчатые радиаторы отопления
Алюминиевые
Биметаллические
Радиаторы чугунные
Термочехлы
Канализация
Безраструбные чугунные трубы
Трубы SML
Опорные трубы SML
Опорные кольца SML
Отводы SML
Тройники SML
Крестовины SML
Ревизии SML
Заглушки SML
Переходы с чугуна на пластик
Хомуты для SML труб
Хомуты соединительные для труб SML/KML
Хомуты усиливающие для труб SML/KML
Наружная канализация
Трубы
Отводы
Отводы 15°
Отводы 30°
Отводы 45°
Отводы 67°
Отводы 90°
Тройники канализационные наружные
Крестовины
Ревизии
Муфты
Переходы
Заглушки
Клапаны
Канализационное оборудование
Кровельные воронки
Капельные воронки
Воздушные канализационные клапаны
Обратные канализационные клапаны
Внутренняя канализация
Трубы
Отводы
Тройники
Крестовины
Ревизии
Муфты
Переходы
Компенсационные патрубки
Заглушки
Хомуты с защелкой
Вакуумные клапаны (Аэраторы)
Шумопоглощающая канализация
Трубы канализационные шумопоглощающие
Отводы
Крестовины
Переходы
Ревизии
Муфты
Компенсационные патрубки
Заглушки
Хомуты
Системы внутренних водостоков
Гидро-пароизоляция и ветрозащита
Пергамин
Битумные мастики
Крепеж
Хомуты
Хомуты трубные
Хомуты вентиляционные
Хомуты для SML труб
Хомуты соединительные для труб SML/KML
Хомуты усиливающие для труб SML/KML
Хомуты спринклерные
Хомуты со шпилькой
Хомуты для высоких нагрузок
Хомуты сантехнические
Двойные хомуты для труб
Штифты для изоляции
Штифты самоклеющиеся
Штифты приварные
Штифты приварные с диском
Штифты приварные без диска
Диски и колпачки на штифты
Дюбель-крюк для труб
Шина фиксирующая для труб
Кровельные опоры
Дюбели для изоляции
Подвесы теплоизоляционные
Подвесы без хомута
Подвесы с хомутом
Подвесы для высоких нагрузок
Фиксаторы поворота трубы
Скоба якорная для труб теплого пола
ЛЕНТА БАНДАЖНАЯ
Метизы
Шпилька
Болты
Шайбы
Гайки
Перфолента
Вентиляция и кондиционирование
Вентиляторы
Вентиляторы канальные
Вентиляторы канальные круглые
Вентиляторы канальные осевые
Вентиляторы канальные прямоугольные
Тепловентиляторы
Гибкие вставки
Шумоглушители
Шумоглушители для круглых воздуховодов
Шумоглушители для прямоугольных воздуховодов
Решетки вентиляционные
Решетка вентиляционная круглая
Решетка вентиляционная прямоугольная
Дренажные помпы
Клапаны противопожарные
Воздушные клапаны
Дроссель-клапаны
Приточно-вытяжные установки
Гибкие воздуховоды
Диффузоры
Диффузоры пластиковые
Кондиционеры
Контрольно-измерительные приборы
Манометры
Манометры аксиальные
Манометры радиальные
Термометры
Термометры аксиальные
Термометры накладные
Термометры погружные
Счетчики газа
Термоманометры
Термоманометры аксиальные
Термоманометры радиальные
Счетчики воды
Счетчики горячей воды
Счетчики холодной воды
Теплосчётчики
Мембранные расширительные баки
Расширительные баки отопления
Комплектующие для мембранных баков
Мембраны на баки
Гидроаккумуляторы
Фитинги
Фитинги для полипропиленовых труб
Муфты полипропиленовые
Муфты полипрополеновые соединительные
Муфты полипропиленовые переходные
Муфты полипропиленовые разъемные
Муфты полипропиленовые комбинированные
Муфты комбинированные PP-R разъемные
Муфты комбинированные PP-R c внутренней резьбой
Муфты комбинированные PP-R с накидной гайкой
Муфты комбинированные PP-R c наружной резьбой
Угольники полипропиленовые
Водорозетка полипропиленовая
Угольники полипропиленовые комбинированные
Тройники полипропиленовые
Тройники полипропиленовые комбинированные
Крестовины полипропиленовые
Вварное седло полипропиленовое
Компенсаторы полипропиленовые
Заглушки полипропиленовые
Фланцы для PP-R
Бурты полипропиленовые
Опора PP-R
Обвод полипропиленовый
Настенные комплекты для смесителя полипропиленовые
Переходники PPR-PEX
Штуцеры PP-R
Фитинги для металлопластиковых труб
Пресс-фитинги латунные
Пресс-муфты
Пресс-переходники
Пресс-тройники
Пресс-угольники
Пресс-водорозетки
Пресс-трубки Г-образные
Пресс-трубки Т-образные
Фитинги обжимные латунные
Муфты обжимные
Переходники обжимные
Угольники обжимные
Водорозетки обжимные
Тройники обжимные
Крестовины обжимные
Евроконус обжимной
Резьбозажимные соединения для труб
Трубки для подключения радиатора
Пресс-трубки Г-образные
Трубки Г-образные аксиальные
Пресс-трубки Т-образные
Трубки Т-образные аксиальные
Фитинги для медных труб
Пресс-фитинги для медных труб
Фитинги для медных труб под пайку
Фитинги для гофрированных нержавеющих труб
Фитинги аксиальные
Гильзы монтажные
Муфты аксиальные
Муфты аксиальные переходные
Муфты аксиальные равнопроходные
Переходники аксиальные
Переходники аксиальные с внутренней резьбой
Переходники аксиальные с наружной резьбой
Переходники аксиальные с накидной гайкой
Угольники аксиальные
Угольники аксиальные с внутренней резьбой
Угольники аксиальные с наружной резьбой
Угольники аксиальные равнопроходные
Водорозетки аксиальные
Тройники аксиальные
Тройники аксиальные равнопроходные
Тройники аксиальные с внутренней резьбой
Тройники аксиальные переходные
Тройники аксиальные с наружной резьбой
Трубки Г-образные аксиальные
Трубки Т-образные аксиальные
Евроконусы аксиальные
Заглушки аксиальные
Фитинги обжимные латунные
Муфты обжимные
Переходники обжимные
Угольники обжимные
Водорозетки обжимные
Тройники обжимные
Крестовины обжимные
Евроконус обжимной
Фитинги радиальные
Фитинги PE-RT
Трубки для подключения радиатора
Пресс-трубки Г-образные
Трубки Г-образные аксиальные
Пресс-трубки Т-образные
Трубки Т-образные аксиальные
Фитинги для труб из сшитого полиэтилена
Фитинги аксиальные
Гильзы монтажные
Муфты аксиальные
Переходники аксиальные
Угольники аксиальные
Водорозетки аксиальные
Тройники аксиальные
Трубки Г-образные аксиальные
Трубки Т-образные аксиальные
Евроконусы аксиальные
Заглушки аксиальные
Фитинги радиальные
Фитинги PE-RT
Резьбозажимные соединения для труб
Трубки для подключения радиатора
Пресс-трубки Г-образные
Трубки Г-образные аксиальные
Пресс-трубки Т-образные
Трубки Т-образные аксиальные
Фитинги для труб ПНД
Муфты для ПНД труб
Отводы для ПНД труб
Тройники для ПНД труб
Переходники для ПНД труб
Заглушки для ПНД труб
Седелки для ПНД труб
Фланец для ПНД труб
Ключи для ПНД фитингов
Фитинги для стальных труб
Пресс-фитинги нержавеющие
Муфты-пресс нержавеющие
Угольники-пресс нержавеющие
Тройники-пресс нержавеющие
Водорозетки-пресс нержавеющие
Обводы-пресс нержавеющие
Вставки-пресс нержавеющие
Заглушки-пресс нержавеющие
Кольца уплотнительные под пресс-фитинги
Фитинги латунные резьбовые
Муфты резьбовые латунные
Переходники резьбовые латунные
Ниппели резьбовые латунные
Ниппели равнопроходные латунные
Ниппели переходные латунные
Ниппели удлиненные латунные
Тройники резьбовые латунные
Угольники резьбовые латунные
Соединения с накидной гайкой резьбовые латунные
Футорки резьбовые латунные
Заглушки резьбовые латунные
Удлинители резьбовые латунные
Крестовины резьбовые латунные
Штуцеры резьбовые под шланг
Контргайки резьбовые латунные
Американки латунные
Выпуски резервуарные
Пресс-фитинги латунные
Пресс-муфты
Пресс-переходники
Пресс-тройники
Пресс-угольники
Пресс-водорозетки
Пресс-трубки Г-образные
Пресс-трубки Т-образные
Пресс-фитинги нержавеющие
Муфты-пресс нержавеющие
Угольники-пресс нержавеющие
Тройники-пресс нержавеющие
Водорозетки-пресс нержавеющие
Обводы-пресс нержавеющие
Вставки-пресс нержавеющие
Заглушки-пресс нержавеющие
Кольца уплотнительные под пресс-фитинги
Фитинги чугунные резьбовые
Резьбозажимные соединения для труб
Заглушки монтажные
Отопительное оборудование
Тепловентиляторы
Водонагреватели
Воздушно-тепловые завесы
Тепловые завесы без нагрева
Водяные тепловые завесы
Электрические тепловые завесы
Котлы
Котлы газовые
Котлы электрические
Противопожарное оборудование и материалы
Муфты противопожарные
Огнезащитная краска
Шнуры огнестойкие термоуплотнительные
Огнезащитные герметики и мастики
Огнезащитные лаки
Шкафы пожарные
Шкафы пожаротушения
Огнестойкая монтажная пена
Лента термоуплотнительная
Огнестойкая кабельная проходка
Огнезащитные пропитки
Огнетушители и подставки
Установки пожаротушения
Сантехника и комплектующие
Сифоны
Сифоны Prevex
Запорно-регулирующая арматура
Краны шаровые
Шаровые латунные
Для воды
Краны шаровые для газа
Краны шаровые мини
Краны шаровые со штуцером
Краны шаровые с фильтром
Полипропиленовые
Шаровые чугунные
Для ПНД труб
Незамерзающие
Сантехнические
Фильтры
Фильтры сетчатые латунные
Фильтры сетчатые PP-R
Фильтры сетчатые чугунные
Фильтры промывные латунные
Воздухоотводчики
Воздухоотводчики прямые
Воздухоотводчики угловые
Воздухоотводчики с отсечным клапаном
Воздухоотводчики с боковым выпуском
Воздухоотводчики для радиатора
Краны Маевского (воздухоотводчики ручные)
Клапаны отсечные для воздухоотводчика
Виброкомпенсаторы
Радиаторная арматура
Узлы нижнего подключения радиаторов
Комплекты подключения радиаторов
Клапаны запорные радиаторные
Клапаны термостатические радиаторные
Клапаны
Обратные клапаны
Клапаны обратные полипропиленовые
Клапаны предохранительные
Клапаны запорные радиаторные
Клапаны термостатические радиаторные
Клапаны отсечные для воздухоотводчика
Клапаны регулирующие
Клапаны балансировочные
Задвижки
Задвижки клиновые
Задвижки шиберные
Задвижки латунные
Затворы дисковые
Затворы дисковые с рукояткой
Затворы дисковые с редуктором
Редукторы давления
Поршневые
Мембранные
Расходные материалы
Фреон
Пена монтажная
Припой и флюс
Твердые припои
Мягкий припой
Флюс
Клей
Клей-пена
Уплотнительные материалы
Герметики анаэробные
Лен сантехнический
Паста уплотнительная
Фум-лента
Смазка сантехническая
Очистители и растворители
Герметики
Герметики анаэробные
Коллекторы
Коллекторы распределительные
Коллекторы латунные
Коллекторы из нержавеющей стали
Коллекторы полипропиленовые
Модульные коллекторы и гидрострелки
Гидравлические разделители
Модульные коллекторы в теплоизоляции
Насосно-смесительные узлы для коллектора
Шкафы коллекторные
Шкафы коллекторные встраиваемые ШРВ
Шкафы коллекторные наружные ШРН
Шкафы коллекторные наружные глубокие ШРНГ
Коллекторные группы
Коллекторные группы латунь
Коллекторные группы нержавейка
Комплектующие для коллекторов
Кронштейны для коллекторов
Расходомеры для коллектора
Фиксаторы поворота трубы
Группы быстрого монтажа
Гидравлические разделители
Насосно-смесительные узлы для коллектора
Модульные коллекторы в теплоизоляции
Инструменты
Зачистной инструмент
Сварочное оборудование
Пистолеты сварочные для штифтов
Паяльник для полипропилена
Инструмент для пресс-фитингов
Ключи
Инструмент для аксиальных фитингов
Базальтовая сетка
Электрические теплые полы
Электрика
Средства индивидуальной защиты
Компрессоры
Бренды
Дисконт
Сметы
NEW
Доставка
Оплата
Наши проекты
Поддержка
Обратиться в компанию
Калькуляторы
Библиотека
NEW
Контакты